Eladó iroda/üzlethelyiség Budaörs 330 000 000 Ft

Leírás

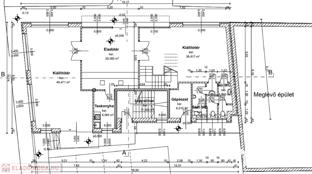
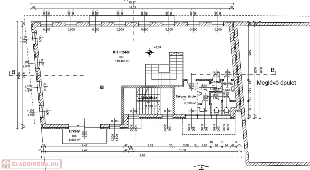
Remek elhelyezkedéssel és kialakítással 265nm-es üzlethelyiség Budaörsön!
Nagy átmenő forgalom, hatalmas üvegfelületek, belső kétszint! Kell ennél jobb lehetőség?

Budaörs egyik legforgalmasabb főútvonalán, a Budapesti úton 2025 nyarán átadásra kerülő üzlethelyiség keresi új tulajdonosát.
Az ingatlan mesteri tervek, remek építtető és minőségi anyagok felhasználásával kerül megépítésre és átadásra.Itt mindenre gondolt a tervező és az építtető. Kedvező fenntartási költségek a hőszívattyús rendszernek, rengeteg nyílászárónak köszönhetően.
Gondosan ügyeltek a vendégtér, üzlethelyiség maximális kihasználhatóságára, szociális helységek és az irodák megfelelő elhelyezésére.
Jelen építési szakaszában a belső elrendezése még alakítható álmai üzletének kialakításához!

Az üzleti létesítmény főbb részei:
-Bemutatóterem 200m2
-Irodák 40m2
-Szociális helységek 25m2

A belső kétszintes épület ideális választás szinte minden területre:
-szolgáltató központ
-wellness központ
-fitness központ
-szépségszalon
-orvosi rendelő
-kiskereskedlmi egység
-oktatóközpont
-stb......az elképzelés határtalan

Elhelyezkedése szenzációs! Főútvonalak mellett, buszmegállók szomszédságában helyezkedik el hatalmas átmenő forgalommal. Itt biztos lehet benne, hogy vállalkozása révbe érhet megfelelő profittal!

Jöjjön el, nézze meg, lássa meg benne üzleti vállalkozását!

A közelben patika, bevásárlási lehetőség, szupermarketek, közintézmények találhatóak.

Az ingatlan főbb jellemzői:
-265m2-es ingatlan 10nm-es saját erkéllyel(200m2-es vendégtér, 40m2-es iroda és 25m2-es szociális helységek)
-fűtését és hűtését is hőszívattyús rendszer biztosítja remek rezsiköltséget biztosítva
-parkolási lehetőség az épület előtt és a mögötte kiépítésre kerülő parkolóban
-kimagasló minőségű fali és padlóburkolatok(választható)
-nívós belső nyílászrók(választható)

Közlekedése és elhelyezkedése szenzációs:
-Főútvonal mellett találjuk buszmegállók közvetlen szomszédságában
-Az M1-es 5 percen, M7-es és M0-ás autópálya 10 percen belül könnyedén elérhető
-Budapest 15 perc alatt érhető el

Ne hagyja elveszni ezt a páratlan lehetőséget!
Minden nap elérhető vagyok, hívjon, egyeztessünk időpontot az ingatlan megtekintésére!

Irodánkban a következő szolgáltatásokkal állunk meglévő és leendő ügyfeleink rendelkezésére:
-ingatlanközvetítés (díjmentes tanácsadás, kiemelt méretű vevői adatbázis, magas szintű szakmai háttér)
-bank semleges hitelügyintézés vásárlóknak (díjmentes hitelszűrés és tanácsadás)
-adás-vétellel kapcsolatos jogi tanácsadás.
-ingyenes ingatlan közvetítés kereső ügyfeleink részére.
-energetikai tanúsítvány készítése.
(További képekért és információkért kérem hívjon!)

Iroda/üzlethelyiség részletei

Ár: 330 000 000 Ft
Méret: 265 négyzetméter
Azonosító: 11444367
Irodai azonosító: 621407
Jelleg: Üzlethelyiség

Így keressen eladó irodát négy egyszerű lépésben. Csupán 2 perc, kötelezettségek nélkül!

Szűkítse a eladó irodák
listáját
Válassza ki a megfelelő
eladó irodát
Írjon a hirdetőnek
Várjon a visszahívásra