Eladó iroda/üzlethelyiség Budapest III. ker 269 900 000 Ft

Leírás

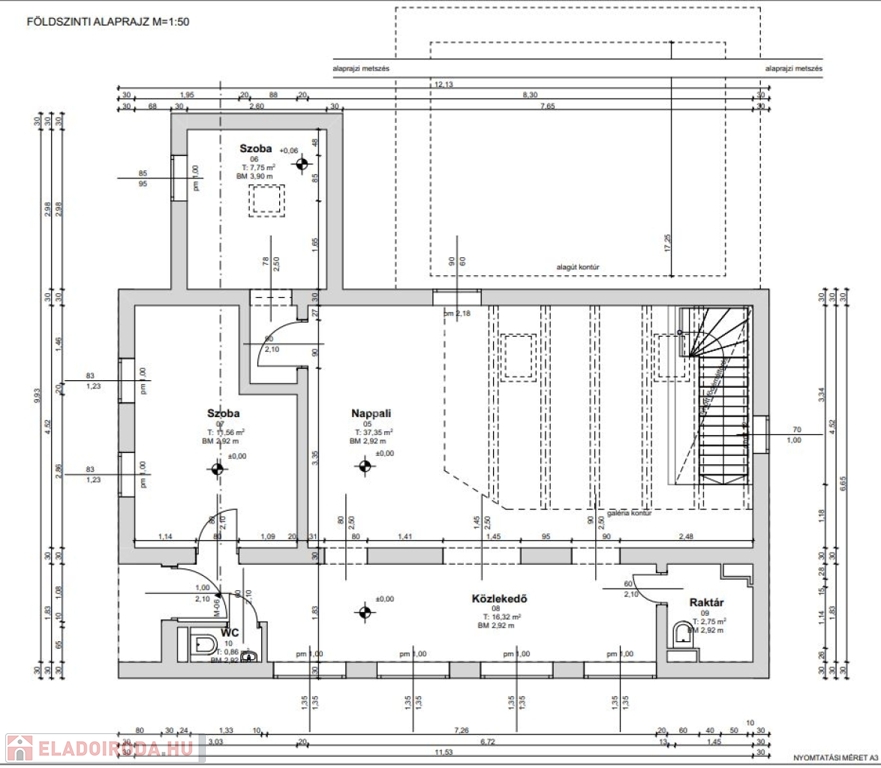
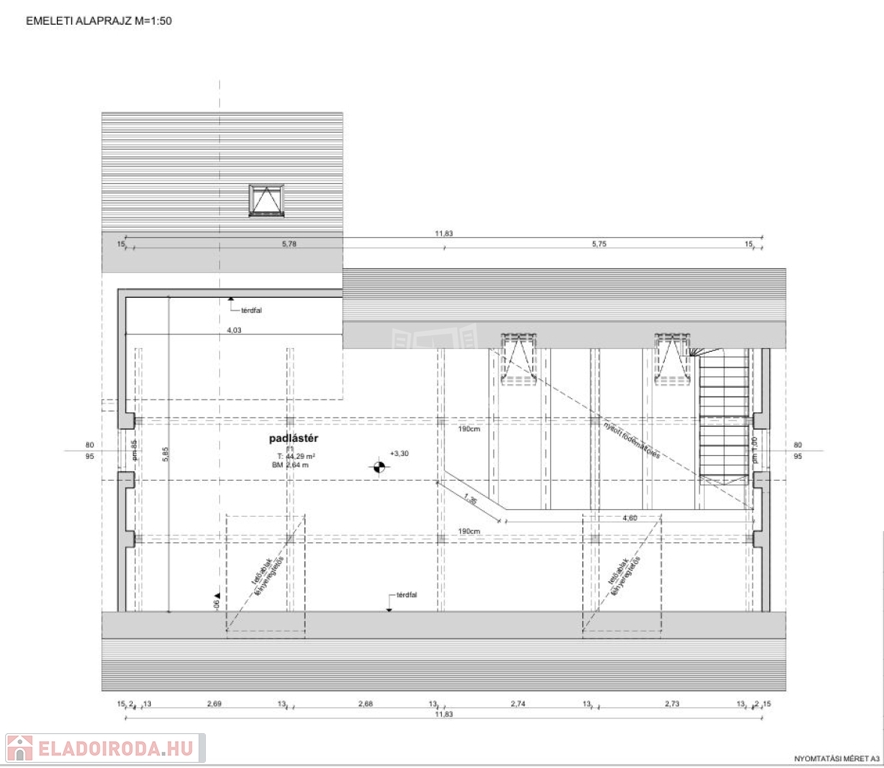
III. kerületben, Országúton, 736 nm-es telken lévő, 295 nm lakóterületű, jelenleg 3 szobás, beépített tetőterű, befejezés előtt álló, hegyoldal lábánál épült, első sorban üzleti célra alkalmas, önálló családi ház eladó.
Különlegessége, hogy a helykihasználás jegyében a hegy belsejében alakítottak ki 180 nm-es, hatalmas, boltíves pincét, ami kb. 3m belmagasságú és 100 nm-en téglával borított.
A pince fölött egy 125nm-es loft stílusú iroda található.
A téglaíves régi pince földlakásoknál használt szigetelése folyamatban van, az árban ezen technológiával történt szigetelés benne van.
A hőmérsékletről hűtő-fűtő hőszivattyú gondoskodik, melyet majd a beszerelendő napelemek fognak üzemeltetni és amely a 2 db közel 40 m mély fúrt kút segítségével működnek hőcserélő segítségével. A fúrt kutakon házi vízmű található.
Az ingatlan falaira átadásra vízzáró szigetelés kerül, melynek az ára az átadási árban benne van.
A telken található még egy 25 nm-es melléképület is, melynek felújítása folyamatban van.
A parkolás telken belül kialakított felszíni beállókkal megoldott 3 autó számára.
A maximális biztonságról kamera - és riasztórendszer gondoskodik.

Az ingatlan elsődlegesen irodának, cégközpontnak, telephelynek, műhelynek, vendéglátó egységnek alkalmas, de számtalan lehetőséget rejt magában.
Autóval és tömegközlekedéssel is jól megközelíthető, buszmegálló, HÉV-megálló a közelben.
További információért és a megtekintéssel kapcsolatban várom hívását.
K.V.

Iroda/üzlethelyiség részletei

Ár: 269 900 000 Ft
Méret: 295 négyzetméter
Azonosító: 11478068
Irodai azonosító: 378212
Cím: Ország út
Jelleg: Üzlethelyiség

Egyéb jellemzők

  • Garázs
  • Parkoló

Térkép


Így keressen eladó irodát négy egyszerű lépésben. Csupán 2 perc, kötelezettségek nélkül!

Szűkítse a eladó irodák
listáját
Válassza ki a megfelelő
eladó irodát
Írjon a hirdetőnek
Várjon a visszahívásra