Eladó iroda/üzlethelyiség Budapest VII. ker 400 000 000 Ft

Leírás

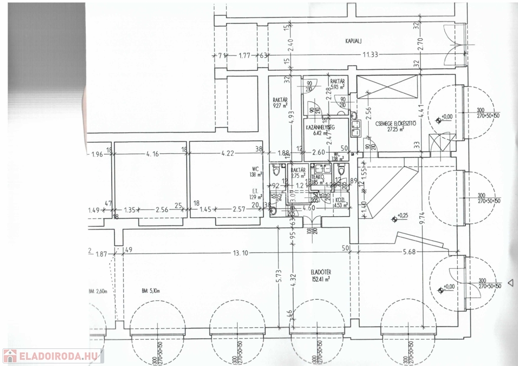
VII.KERÜLETI 587nm-es ÜZLETHELYISÉG A VÁROSLIGET KÖZELÉBEN ELADÓ!

VII.kerületi 3 szintes üzlethelyiség, mely 440 nm -es földszint , 147 nm galéri a valamint 60 nm pincével is rendelkezik.

A földszinti résznek több bejárata és nagy ablakfeletei biztosítják az ingatlan kereskedelmi szolgáltatásának hatékonyságát.
Itt van teher lift is, mely pillanatnyilag nincs használatban.
Ezenkivül beépített konyha villanybojlerrel.
A fűtés gázcirkó mely,jelenleg használaton kivül van. Mozgatható gipszkarton falak, mely könnyen bontható így alakíthatók a belső terek.
A teljesértékű galéria tárolásra alkalmas, és több mosdó s megtalálható fent. úgy ahogy a földszinti részen is .

A galérián még két külön bejáratú szoba is van.

Parkolás az utcán , az üzlethelyiséghez nem tartozik saját parkoló!

Infrstruktúra: SPAR üzlet a közelben
Közlekedés: 78-as 70 es trolibuszok a közelben.

Kíváló lehetőség oktatási központnak,Fittnes szalonnak, bemutató teremnek, Bútor áruháznak vagy bármilyen üzleti tevékenységre!

Megtekinthető :hét folyamán napközben!

Hívjon bizalommal.

Iroda/üzlethelyiség részletei

Ár: 400 000 000 Ft
Méret: 587 négyzetméter
Azonosító: 11474926
Irodai azonosító: 377705
Cím: Damjanich utca
Jelleg: Üzlethelyiség

Egyéb jellemzők

  • Garázs
  • Parkoló
  • Utcafront

Térkép


Így keressen eladó irodát négy egyszerű lépésben. Csupán 2 perc, kötelezettségek nélkül!

Szűkítse a eladó irodák
listáját
Válassza ki a megfelelő
eladó irodát
Írjon a hirdetőnek
Várjon a visszahívásra