Eladó iroda/üzlethelyiség Budapest XVIII. ker, Bókaytelep, 350 000 000 Ft

Leírás

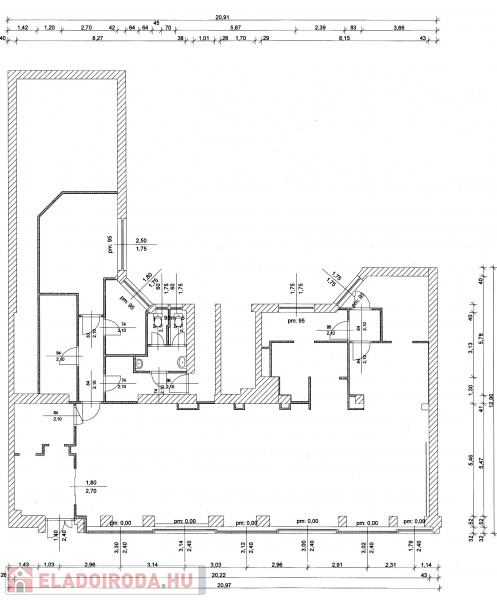
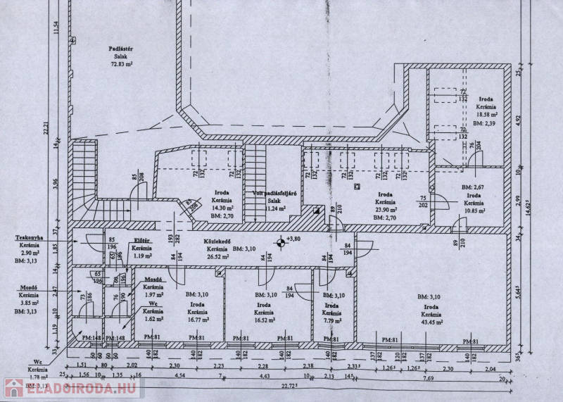
Pestszentlőrinc központi részén kétszintes, szintenként 250 m2-es, klimatizált ingatlan 200 m2-es pincével eladó. A földszinten külön, utcai bejáratú üzlet, az emeleten külön, udvari bejáratú irodák lettek kialakítva. Lásd alaprajzok. Mindegyik szintnek külön mérőórái (víz, villany, gáz) vannak. Külön gázkazánnal, villanybojlerrel ellátva.

Iroda/üzlethelyiség részletei

Ár: 350 000 000 Ft
Méret: 500 négyzetméter
Azonosító: 9942877
Városrész: Bókaytelep
Jelleg: iroda

Így keressen eladó irodát négy egyszerű lépésben. Csupán 2 perc, kötelezettségek nélkül!

Szűkítse a eladó irodák
listáját
Válassza ki a megfelelő
eladó irodát
Írjon a hirdetőnek
Várjon a visszahívásra