Eladó iroda/üzlethelyiség Debrecen, Belváros, 395 000 000 Ft

Leírás

Debrecen egyik legforgalmasabb csomópontjához közel, mégis egy csendes, ősfás utcában kínálok megvételre egy különleges új építésű ingatlant.
Egyben eladó, amely társasházként (2 lakás, 1 iroda, 3 garázs) készül, de kialakítása miatt számos üzleti és befektetési koncepcióra továbbgondolható.

Az épület 95%-os készültségi állapotban van, a belső burkolatok és ajtók az új tulajdonos igényei szerint fejezhető be – ez óriási előnyt jelent mind funkcióban, mind arculatban.

A projekt lényege és ereje:
- 3 szint, mindegyik önálló funkcióval
- modern, minimál stílus, kiemelkedő energetikai megoldások
- külön albetétek (1 iroda, 2 lakás, 3 garázs)
- nagy üvegfelületek, prémium nyílászárók
- tágas teraszok, kivételes fényviszonyok
- hőszivattyús fűtés-hűtés, padló- és mennyezet temperálás

Miért különleges?
Mert ritka Debrecenben olyan új építésű ingatlan, amely:
- vállalkozásra, szolgáltatásra és lakhatásra egyszerre alkalmas,
- belváros-közeli, mégis nyugodt utcában található,
- társasházként is megtartható, de
- komplex projektté, saját üzleti központtá, magánklinikává vagy szálláshellyé is átalakítható.

Lehetséges hasznosítások (nem teljes lista):
* magánklinika / egészségügyi központ
* prémium irodaház, 20–25 munkaállomással
* cégközpont / székhely
* rövid- vagy hosszútávú szálláshely (akár 20 főig)
* szépségipari szolgáltató központ
* többgenerációs családi ház
* vagy a társasházi struktúra megtartásával: továbbértékesítés, bérbeadás.

Lokáció – a projekt egyik legnagyobb értéke

Az ingatlan 10 perc sétára van a belvárostól, kórház, bevásárlóközpont, éttermek, benzinkút, buszmegálló és egy rendezett angolkert közvetlen közelében.
Ez a pozíció Debrecenben meghatározó előnyt jelent mind befektetési értékben, mind kihasználhatóságban.

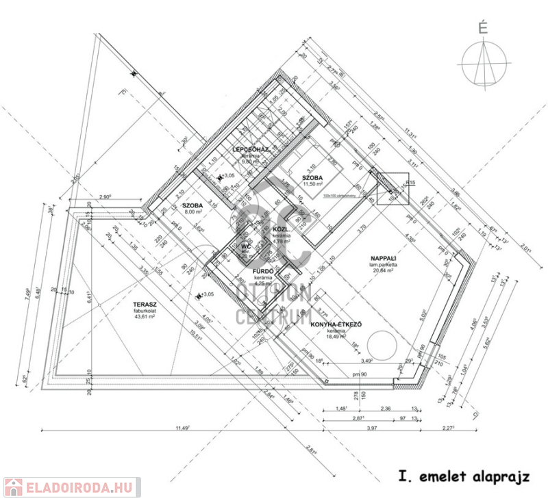
Főbb műszaki paraméterek (röviden):
- bruttó ~320 m² összterület
- több mint 40 m²-es prémium terasz
- 3 állásos teremgarázs
- porotherm falazat, 15 cm szigeteléssel
- prémium alumínium nyílászárók, 3 rétegű üvegezéssel
- energiahatékony hőszivattyús rendszer
- tetőtérben extra PIR + fújt purhab szigetelés.

„Ez az ingatlan nem csupán egy projekt – hanem egy stratégiai előny, amit most lehet megszerezni.”

Iroda/üzlethelyiség részletei

Ár: 395 000 000 Ft
Méret: 251 négyzetméter
Azonosító: 11603785
Városrész: Belváros
Jelleg: iroda

Így keressen eladó irodát négy egyszerű lépésben. Csupán 2 perc, kötelezettségek nélkül!

Szűkítse a eladó irodák
listáját
Válassza ki a megfelelő
eladó irodát
Írjon a hirdetőnek
Várjon a visszahívásra