Eladó iroda/üzlethelyiség Debrecen, Belváros, 99 000 000 Ft

Leírás

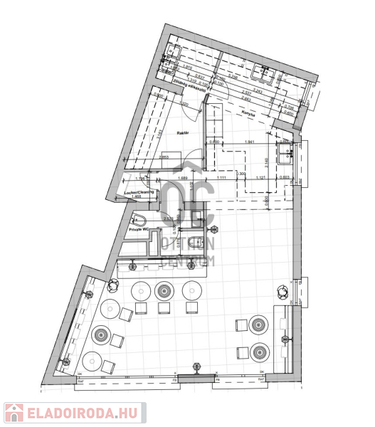
Debrecen belvárosának szívében,nagy gyalogos forgalmú díszburkolatos utcában, a város egyik legfrekventáltabb helyén, 2008-ban épült társasház földszintjén bisztró-kávéház-bárként is üzemelő, frissen felújított, klimatizált, meleg-konyhás, 70 nm-es (+bérelhető 33 nm terasz) vendéglátóegység tulajdonjoga teljes berendezéssel eladó.

Iroda/üzlethelyiség részletei

Ár: 99 000 000 Ft
Méret: 70 négyzetméter
Azonosító: 11455916
Városrész: Belváros
Jelleg: iroda

Így keressen eladó irodát négy egyszerű lépésben. Csupán 2 perc, kötelezettségek nélkül!

Szűkítse a eladó irodák
listáját
Válassza ki a megfelelő
eladó irodát
Írjon a hirdetőnek
Várjon a visszahívásra