Eladó iroda/üzlethelyiség Jánossomorja 45 700 000 Ft

Leírás

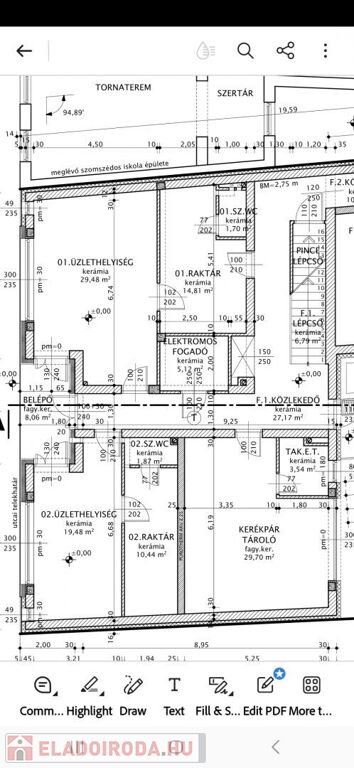
Jánossomorja központi részén épülő társasház utcafronti részén eladó egy 32m2 es üzlethelyiség amely az alábbi helyiségekből tevődik össze.
- 19,48m2 eladótér
- 10,44m2 raktár
- 1,87m2 WC
Az ár emelt fűtéskész állapotra vonatkozik. Az ingatlanhoz kötelező megvásárolni 1 db zárt udvari gépkocsibeállót amely ára további 2 millió forint. A vételáron felül, szerződéskötéskor egyéb költségekre mint illetékek, postaláda, energetikai tanusítvány, földhivatali bejegyzések stb. további 300 ezer forint fizetendő.
A várható befejezés 2026 decembere.
Össz. vételár 48 millió forint.

Ugyanitt eladó 46m2-es üzlet és lakások 32m2-52m2 között. Részletekért keressenek bizalommal.

Érd: 06-70-605-0506

Iroda/üzlethelyiség részletei

Ár: 45 700 000 Ft
Méret: 32 négyzetméter
Azonosító: 11570869
Irodai azonosító: 122489
Cím: Jánossomorja
Jelleg: Üzlethelyiség

Egyéb jellemzők

  • Lift

Így keressen eladó irodát négy egyszerű lépésben. Csupán 2 perc, kötelezettségek nélkül!

Szűkítse a eladó irodák
listáját
Válassza ki a megfelelő
eladó irodát
Írjon a hirdetőnek
Várjon a visszahívásra