Eladó iroda/üzlethelyiség Komárom 350 000 000 Ft

Leírás

Eladó Komárom egyik legkiemelkedőbb és impozáns üzlethelyisége, amely ideális lehetőség vállalkozása számára!

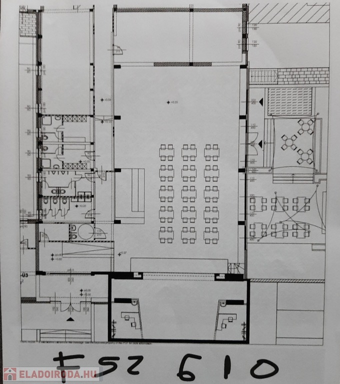
Az ingatlan földszinti kialakításának köszönhetően könnyű megközelíthetőséget és kiváló láthatóságot biztosít, területe 610 négyzetméter.
Emellett a pince szint további 455 négyzetmétert foglal magában, így összesen tágas és sokoldalúan kihasználható üzlethelyiség áll rendelkezésre.

A környezet rendkívül dinamikus és fejlődő, itt találhatóak újépítésű lakóparkok, lakótelepek, valamint számos kereskedelmi és bevásárló egység, melyek további lehetőségeket nyújtanak üzleti tevékenységéhez.
Rövid távolságon belül pedig a híres Brigetio gyógy- és termálfürdő várja a látogatókat, ami további vendégforrást jelenthet.

Az ingatlanhoz tartozó 1000 négyzetméteres telek zárt parkolóval rendelkezik, így biztosítva a vendégek és dolgozók kényelmes parkolását.
Az elhelyezkedés rendkívül előnyös: közvetlen közelében megtalálható általános iskola, óvoda, éttermek és üzemanyag-töltőállomás, így könnyen integrálható a helyi közösség életébe.

Ingatlannal kapcsolatos adatok:
- földszint: 610 nm
- pince szint: 455 nm
-jelenleg az épület felújítás alatt van
-a meghirdetett ár magába foglalja a szerkezeti építést, ezen belül a belső falak átalakítását, külső homlokzat megjelenítését és a hőszigetelést
-a belső nyílászárókat, burkolatokat nem tartalmazza az ár
- belső falak színe: fehér
- fűtés előkészítése (klíma vagy hőszivattyú, de már a fűtőtestet nem tartalmazza)
-villamossági szempontból betápok kialakítását, de a lámpák és kapcsolók nincsenek benne
-az EON 3x 50 kW energiát tud biztosítani
-napelem rendszer kiépítését
-igény szerint liftakna kiépítését
-bejárati és pincelépcsők kialakítását ( burkolatot nem tartalmazza)
-közös parkoló használata

Ez az ingatlan kiváló lehetőség vendéglátó egység, kereskedelmi üzlet, autószalon vagy más kereskedelmi tevékenység számára.
Modern kialakításával és kiváló lokációjával ideális választás mindenkinek, aki sikeres és látogatott üzletet szeretne nyitni Komáromban.

Ne hagyja ki ezt a páratlan lehetőséget!
Várom mielőbbi megkeresésüket!

A hirdetésben szereplő adatok és alaprajz kizárólag tájékoztató jellegűek! Bővebb felvilágosítás az ingatlan személyes megtekintése során!

Iroda/üzlethelyiség részletei

Ár: 350 000 000 Ft
Méret: 610 négyzetméter
Azonosító: 11610660
Irodai azonosító: 339673
Jelleg: Üzlethelyiség

Egyéb jellemzők

  • Lift

Így keressen eladó irodát négy egyszerű lépésben. Csupán 2 perc, kötelezettségek nélkül!

Szűkítse a eladó irodák
listáját
Válassza ki a megfelelő
eladó irodát
Írjon a hirdetőnek
Várjon a visszahívásra