Eladó iroda/üzlethelyiség Miskolc 220 000 000 Ft

Leírás

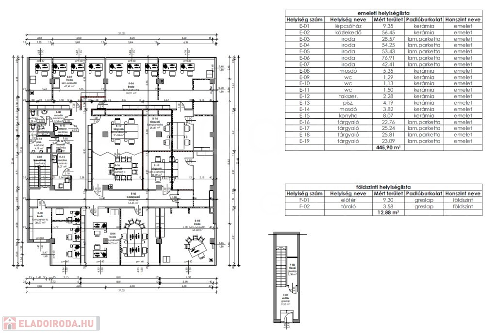
Miskolc belvárosában, a Pátria szolgáltató házban, I. emeleti 459 m² üzlethelyiség ELADÓ!!

Az ingatlan jelenleg 10 irodából, tárgyalóból, konyhából, vizesblokkokból álló irodahelyiség.
Az irodaház földszinti részen üzletek, étterem, gyógyszertár, találhatóak.

A frekventált belvárosi elhelyezkedés ideális az ingatlan funkciójához, mivel a város jelentős gyalogos forgalma itt halad el a belváros egyetlen villamos vonalával együtt. A gépjármű és teherforgalom is megoldott a Kossuth L. út felől, ahol nagyméretű, fizetős parkoló fekszik.
Az épület szomszédságában hasonló jellegű üzletek és szolgáltatók működnek, melyek nagy forgalmat bonyolító bankok, biztosítók.

Műszaki adatok:
- Az ingatlan kialakítása 5,4 m x 5,4 m rács kiosztású betonoszlopos, melyek között könnyűszerkezetes elválasztó falak lettek kialakítva, ezért a jelenlegitől eltérő egyéb alternatív hasznosítása kiváló.
- A nyílászárók alumínium szerkezetűek.
-A falak festettek, a burkolat járólap és padlószőnyeg vegyesen.
- Az épület a városi távhő szolgáltatással fűtött.

A frekventált elhelyezkedés, és jól alakítható, újszerű belső terek páratlan lehetőségeket kínálnak az egyéb üzleti célok megvalósítására.

Irányár: 220.000.000.ft + ÁFA

Ha az ingatlan felkeltette az érdeklődését, hívjon bizalommal!

Iroda/üzlethelyiség részletei

Ár: 220 000 000 Ft+ÁFA
Méret: 459 négyzetméter
Azonosító: 11461164
Irodai azonosító: 115877
Cím: Miskolc
Jelleg: iroda

Egyéb jellemzők

  • Lift

Így keressen eladó irodát négy egyszerű lépésben. Csupán 2 perc, kötelezettségek nélkül!

Szűkítse a eladó irodák
listáját
Válassza ki a megfelelő
eladó irodát
Írjon a hirdetőnek
Várjon a visszahívásra