Eladó iroda/üzlethelyiség Miskolc 69 900 000 Ft

Leírás

ÁRCSÖKKENÉS!
Régi ár: 74.9 M Új ár: 69.9 M

Miskolcon, a Testvérvárosok útján eladó egy kiváló elhelyezkedésű, két szintes, összesen 296 m²-es ingatlan, amely jelenleg is működő kondicionáló és fitneszteremként üzemel. Ideális befektetés, hiszen egyedi megállapodás alapján akár a jelenlegi bérlő is maradhat, biztosítva az azonnali bevételt. Az épület rugalmasan alakítható, így számos egyéb üzleti célra is alkalmas (pl. irodák, orvosi rendelő, szépségszalon, oktatási központ).

Kérjük, vegye figyelembe, hogy az ingatlan vételára nem tartalmazza a képeken látható berendezéseket és felszereléseket, azok a jelenlegi bérlő tulajdonát képezik.

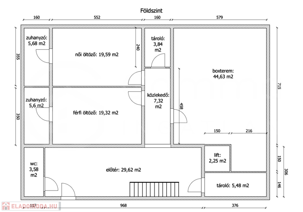
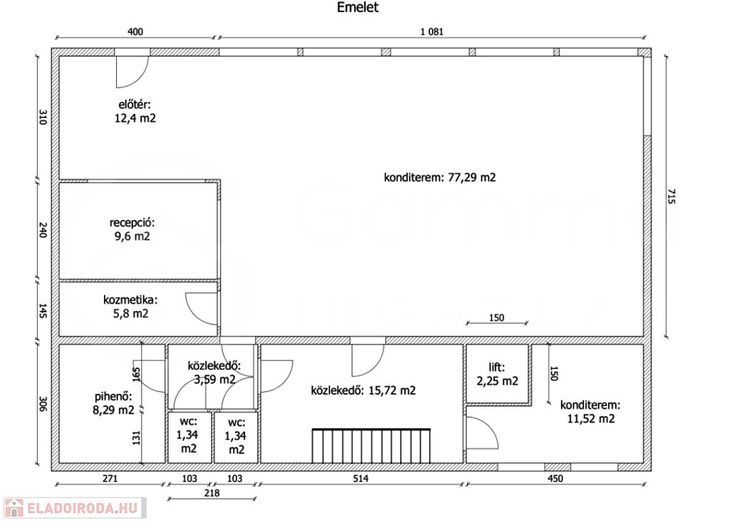
Helyiséglista:
Emelet:
-Funkcionális területek: Tágas konditerem, recepció, kozmetika, pihenő.
-Kiszolgáló helyiségek: Előtér, közlekedő, 2 db WC.
Megjegyzés: A lift jelenleg üzemen kívül van.

Földszint:
-Sportolói területek: Bokszterem, női és férfi öltözők zuhanyzókkal.
-Kiszolgáló helyiségek: Előtér, közlekedő, WC, 2 db tároló.

Környezet:
Az ingatlan Miskolc népszerű, forgalmas részén, az Avas városrészben I ütemében található, közvetlenül a Testvérvárosok útján lévő üzletházban. Panelépítésű társasházak között elhelyezkedő épület, melyben irodák, lakások és üzletek is működnek, kiváló ügyfélbázist és állandó látogatottságot biztosít.

Közlekedés:
Az ingatlan kitűnően megközelíthető autóval és helyi tömegközlekedéssel egyaránt.
Az aszfaltozott út közvetlenül az épülethez vezet, biztosítva a problémamentes rakodást.
A parkolás ingyenes.

Iroda/üzlethelyiség részletei

Ár: 69 900 000 Ft
Méret: 296 négyzetméter
Azonosító: 11548750
Irodai azonosító: 120338
Cím: Miskolc
Jelleg: Üzlethelyiség

Egyéb jellemzők

  • Lift

Így keressen eladó irodát négy egyszerű lépésben. Csupán 2 perc, kötelezettségek nélkül!

Szűkítse a eladó irodák
listáját
Válassza ki a megfelelő
eladó irodát
Írjon a hirdetőnek
Várjon a visszahívásra