Eladó iroda/üzlethelyiség Szántód 32 500 000 Ft

Leírás

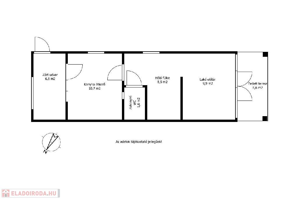
Balaton déli part, Szántód 31 m2 jelenleg apartmant berendezett üzlet eladó. A hivatalosan üzlethelyiségként nyilvántartott, de jelenleg apartmanként kialakított ingatlan Szántód RÉV-nél helyezkedik el, egy üzletsor szélső egységeként. A temperálás hűtő-fűtő klímával, meleg víz ellátás villanybojlerrel megoldott. A zárt térhez elől fedett terasz, hátul panorámás zárt kis udvar kapcsolódik. Az épület előtt parkolási és kivonulási lehetőség biztosított kereskedelmi szolgáltatás esetén. Az ingatlan kiválóan hasznosítható nyaralásra, kiadásra, kereskedelmi tevékenységre. Bővebb információért, megtekintésért keressen telefonon!

Az energetikai tanúsítvány készítése folyamatban van, amint rendelkezésre áll, úgy azzal a hirdetés frissítésre kerül.



Referencia szám: M279279

Iroda/üzlethelyiség részletei

Ár: 32 500 000 Ft
Méret: 30 négyzetméter
Azonosító: 11395596
Irodai azonosító: HK-4663475-4663475
Jelleg: Üzlethelyiség
Helyiségek: 2

Egyéb jellemzők

  • Garázs
  • Parkoló

Térkép


Így keressen eladó irodát négy egyszerű lépésben. Csupán 2 perc, kötelezettségek nélkül!

Szűkítse a eladó irodák
listáját
Válassza ki a megfelelő
eladó irodát
Írjon a hirdetőnek
Várjon a visszahívásra