Eladó iroda/üzlethelyiség Szeged 100 000 000 Ft

Leírás

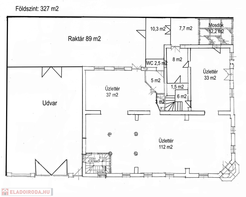
SZŐREGEN VÁLLALKOZÁSRA ALKALMAS 500 M2-ES INGATLAN ELADÓ!

Szőreg központjához közel eladóvá vált egy vállakozásra alkalmas, kétszintes ingatlan. A földszinti részen egy kisebb vendéglátó egységet találunk hozzá kapcsolódó 70 fő befogadására alkalmas, tágas étterem résszel, hideg-meleg konyhával és több raktárhelyiséggel.
Az emeleten pedig egy 70 m2-es, 2 szobás lakás került kialakításra, ami bármikor kiadható, de irodaként is funkcionálhat.
Az ingatlan 2006 évben felújításra került.
A fűtésről 2 db kombi kazán gondoskodik, a hűtésről pedig klímák.
A 3 fázis bekötése megtörtént.

Az ingatlan számos lehetőséget tartogat új tulajdonosa számára legyen szó vendéglátásról, edzőteremről, bemutatóteremről vagy apartmanházról.

NÉZZE MEG AJÁNLATUNKAT SZEMÉLYESEN IS!

Iroda/üzlethelyiség részletei

Ár: 100 000 000 Ft
Méret: 500 négyzetméter
Azonosító: 11211134
Irodai azonosító: 350105
Cím: Szőreg frekventált részén
Jelleg: Üzlethelyiség

Egyéb jellemzők

  • Garázs
  • Parkoló
  • Utcafront

Térkép


Így keressen eladó irodát négy egyszerű lépésben. Csupán 2 perc, kötelezettségek nélkül!

Szűkítse a eladó irodák
listáját
Válassza ki a megfelelő
eladó irodát
Írjon a hirdetőnek
Várjon a visszahívásra