Eladó iroda/üzlethelyiség Szeged 145 920 000 Ft

Leírás

Szeged központjában, közel a sétáló utcához és az egyetemekhez, kiváló környéken, ideális helyen!
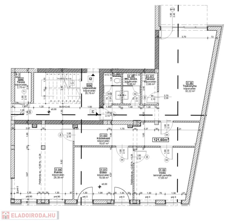
Új építésű 15 lakásos társasházban eladó 121,6 négyzetméteres, prémium kivitelezésű, négy külön bejáratú irodahelyiség + fürdő + WC. + raktár elrendezésű, földszinti iroda kulcsrakész állapotban.
Az épület teremgarázsban garázshelyek is megvásárolhatók.
A társasház megközelíthetősége kiváló, pár perces sétával elérhető a sétáló utca, egyetemek, bevásárló központ, külön előnye a körutak közötti elhelyezkedése miatt, hogy személyautóval is könnyen megközelíthető, kiváló a tömegközlekedés, a belvárosi elhelyezkedés minden előnyével.
Főbb adatok:
- 121,6 m2 terület
- Hőszivattyús padlófűtés + mennyezet hűtés
- kulcsrakész állapot

Amennyiben fölkeltette érdeklődését az ingatlan, illetve kérdése merült fel, hívjon bizalommal a 0630/2490482 tel. számon.
üdvözlettel:
dr. Vass Zoltán
(További kínálatunkat keresse a VING hivatalos weboldalán.)

Iroda/üzlethelyiség részletei

Ár: 145 920 000 Ft
Méret: 122 négyzetméter
Azonosító: 11406837
Irodai azonosító: 751093
Jelleg: iroda

Így keressen eladó irodát négy egyszerű lépésben. Csupán 2 perc, kötelezettségek nélkül!

Szűkítse a eladó irodák
listáját
Válassza ki a megfelelő
eladó irodát
Írjon a hirdetőnek
Várjon a visszahívásra