Eladó iroda/üzlethelyiség Taktakenéz 3 500 000 Ft

Leírás

Taktakenéz jól megközelíthető, csendes részén eladó egy 28,26 m²-es, sokoldalúan hasznosítható üzlethelyiség, amely egy 1548 m²-es, rendkívül tágas telekkel együtt várja új tulajdonosát. Az ingatlan kiváló választás vállalkozóknak, befektetőknek vagy bárkinek, aki egy jól alakítható, stabil szerkezetű épületet keres nagy telekkel.




Főbb jellemzők:
Hasznos alapterület: 28,26 m²

Telek mérete: 1548 m²

Építőanyag: tartós szilikát blokk

Nyílászárók: fa

Közművek: víz, villany, gáz, csatorna – minden közmű bevezetve

Fűtés: jelenleg gázkonvektor biztosítja a meleget




További fűtési lehetőség:

Az épület alatt található pince kéménnyel rendelkezik

Néhány radiátor felszerelésével könnyedén kialakítható vegyestüzelésű fűtés is

Pince: száraz, jól használható, tárolásra vagy műhelyrésznek is ideális




Szerkezeti és műszaki előnyök:
A szilikát blokk építésnek köszönhetően az épület masszív, időtálló.

A pince nagy előny: tárolásra, gépészetnek vagy akár bővítéshez is kiváló.

A kémény megléte miatt gazdaságos, alternatív fűtési mód is kialakítható.

A nagy telek miatt akár további épületek, garázs, műhely vagy parkoló is építhető.




Telek adottságai:
A 1548 m²-es telek rengeteg lehetőséget kínál:

vállalkozói tevékenységhez szükséges udvar vagy parkoló kialakítása

mezőgazdasági, kertészeti célokra is alkalmas

bővítés, új épület vagy melléképület elhelyezése is megoldható




Felhasználási lehetőségek
Az ingatlan sokféle célra ideális:

kisbolt, iroda, szolgáltató egység

műhely, raktár, telephely

szépségipari vagy egészségügyi szolgáltatás

akár lakófunkció kialakítása is lehetséges átalakítással



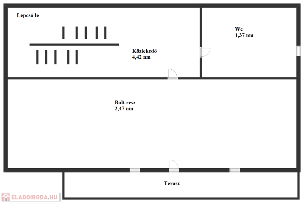
Helységlista:

Boltrész: 22,47 nm

Wc: 1,37 nm

Közlekedő: 4,42 nm

Iroda/üzlethelyiség részletei

Ár: 3 500 000 Ft
Méret: 28 négyzetméter
Azonosító: 11609513
Irodai azonosító: 351648
Jelleg: Üzlethelyiség

Így keressen eladó irodát négy egyszerű lépésben. Csupán 2 perc, kötelezettségek nélkül!

Szűkítse a eladó irodák
listáját
Válassza ki a megfelelő
eladó irodát
Írjon a hirdetőnek
Várjon a visszahívásra